白川鄕與五箇山的差異
合掌造房屋在日本也是僅分佈於庄川沿岸山區這一狹小範圍的建築樣式,即便在這有限的狹小範圍內,白川鄕與五箇山在建築的屋頂形狀、鋪葺方式、入口位置、格局等方面,仍存在差異。在此,我們一同來探究這些差異。
是山牆入屋式還是正面入屋式
山牆入屋式指的是房屋出入口設在山牆側,正面入屋式則是出入口設在房子的正立面側。五箇山多見山牆入屋式建築,而白川鄕主流是正面入屋式。在五箇山,像利賀村等也有以正面入屋式為主的村落;在白川鄕,偶爾也能見到山牆入屋式房屋。
至於為何會出現這樣的差異,目前尚無明確定論。一般認為,白川鄕的泥地狹窄,五箇山的泥地寬廣,建築與道路的位置關係,以及每個聚落建築佈局的規律性等諸多因素相互作用,導致了這種差異的產生。


格局的差異
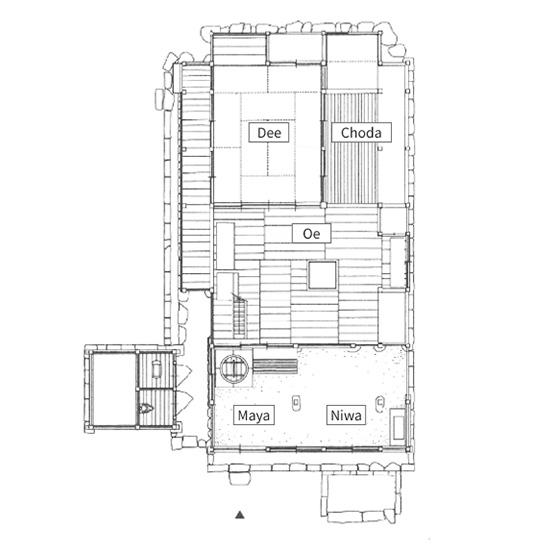
白川鄕和五箇山的房屋格局差別並不太明顯。合掌造房屋的格局有廣間型三間格局和四間格局相互混雜,大型房屋則會增加兩間,形成六間格局。基本的格局構成,以白川鄕這種正面入屋式房屋為例,沿屋脊線將房屋分為表裡兩側。表側下方是飼養耕馬的馬廄(Maya),其裡側是雜用場(白川鄕稱為Minja,五箇山稱為Niwa);雜用場上方相鄰的表側是兼具起居和待客功能的房間(白川鄕稱為Oe,五箇山稱為Dee),裡側是帶有圍爐的煮炊房(白川鄕稱為Daidoko,五箇山稱為Oe);再往上的表側是佛壇前的榻榻米房間(白川鄕稱為Dei,五箇山稱為Dee、Omae),裡側是臥室(Choda),最上方的表側則是佛壇所在。如果Oe和Daidoko之間沒有隔間,就是廣間側三間格局;若隔開則為四間格局。大型房屋中,在Dei的上方還會有一個房間(Okunodei),其裡側是書院式房間(白川鄕稱為Mawarizashiki,五箇山稱為Hikaenoma)。總體構成是表側排列著用於接待客人的房間,裡側排列著居住生活用房,理所當然表側面向正面道路。此外,白川村南部地區的房屋,從入口到雜用場之間有一條稱為「Shashi」的走廊,這是其一大特色。

五箇山的山牆入屋式房屋,入口設在馬廄(Maya)側,旁邊就是雜用場(Niwa)。雜用場若在入口右側,稱為右勝手;若在左側,則稱為左勝手。馬廄側的縱向佈局依次為馬廄、起居待客房(Dee)、榻榻米房間(Omae)、佛壇;雜用場側的佈局為雜用場、煮炊房(Oe)、臥室(Choda),與白川鄕的構成相同。若房屋臨街或是入口面向道路,通常將較明亮的一側設定為馬廄、起居待客房(Dee)、榻榻米房間(Omae)。五箇山的和紙生產興盛,雜用場常作為造紙場使用,因此地面不鋪地板,多為泥土地面,且與馬廄之間多有通道相連。而在白川鄕,五箇山所說的雜用場(Niwa),在白川鄕稱為Usunawa或Minja等,很多時候會鋪上地板作為工作場所,相應地泥土地面就比較狹窄。



屋頂的形狀
觀察屋頂形狀,白川鄕合掌造房屋的屋頂是標準的懸山式。五箇山的合掌造建築,乍一看屋頂像是歇山式。這是因為山牆側突出的附屬建築屋頂同樣用茅草鋪葺,並且直接與主屋大屋頂的銜接部分一同鋪設,所以看起來像是帶有大戧角的歇山式,但實際結構仍是懸山式。


單斜屋頂以整片方式鋪葺的白川鄉、
單斜屋頂分割鋪葺的五箇山
白川鄉和五箇山在屋頂的鋪葺方式上,可見到最明顯的差異。最大的差別在於,白川鄉和五箇山一次鋪葺屋頂的範圍和週期不同。合掌造的屋頂是透過村人相互扶助的「結」的方式鋪葺的,但在白川鄉,會動員超過100人的人力,一次就把單面屋頂鋪好;相較之下,五箇山則是以少數人力,將單面屋頂分割鋪葺。這往往被認為是受到各地區聚落規模的差異,以及茅草場所能供應的茅草量所影響,但在白川鄉,就算是小聚落,也不會分割鋪葺。就算是只有七八戶人家的小聚落,也會向周邊聚落求援,集結人力和茅草,一次就把單斜屋頂鋪好。而在五箇山,會結合自己所能準備的茅草量調整鋪葺範圍,因此以少數人力,將單斜屋頂分成二到四部分來鋪葺。

此外,在換鋪屋頂的週期上也有差異。在白川鄉,一旦鋪好的屋頂,會設法讓它維持40年到60年。甚至有長達80年的例子。這可說是日本茅草屋頂民宅中最長的換鋪週期。相對地,在五箇山,會把單側屋頂縱向分成三分之一(整體來看就是六等分),將分割的部分以大約10年的短週期進行換鋪。這種短週期的換鋪方式,也可稱得上是國內最短的。據說五箇山採取這種短週期換鋪的原因,是為了積極將換鋪時拆下的舊茅草,用在養蠶的桑園或農地當作肥料。這些差異造就了兩地屋頂鋪葺技法的不同。在白川鄉,為了讓屋頂耐用,鋪葺的厚度大約會達到80㎝;而五箇山由於要儘快換鋪,且必須和舊屋頂的厚度一致,所以鋪葺厚度會降到60至70cm。特別是在五箇山,因為是分割鋪葺,發展出了一種白川鄉所沒有的被稱為「剪刀茅」(Hasamigaya)的獨特工法,用來處理與舊屋頂的銜接部分。

―― 白川鄉一次鋪好單斜屋頂的記錄
重要文化財舊遠山家住宅所在的白川村南部的御母衣,是個只有四戶人家的小聚落。但根據遠山家留存的《藏之屋根葺覚帳》(1792年)記載,平瀨、長瀨等御母衣周邊聚落的人都前來幫忙,就算是附屬建築,也有總共47人的人力參與換鋪。從這份資料可以看出,至少在江戶後期,御母衣就已經有一次換鋪屋頂的做法。
此外,位於御母衣和荻町之間曾有12戶人家的大牧聚落的舊太田家,留存了《裏屋根葺替日記帳》(1946年)。其中可以確認,在住家換鋪屋頂時,有周邊的保木脇(6戶)、野谷(3戶)、大窪(2戶)、馬狩(8戶)等四個聚落的人前來幫忙的記錄。
如此一來,白川鄉因為是以大量人力換鋪單斜屋頂,所以會製作記錄幫忙人力和借來茅草數量的「結帳」,以掌握自己必須「回報」的對象。
寬政四年 1792年
―― 相倉聚落的屋頂鋪葺週期
在五箇山,如今屋頂大多由工匠承包鋪葺,分割鋪葺單斜屋頂的情況已逐漸減少。但大約40年前,居民都是自行換鋪屋頂。
五箇山相倉聚落的I家,一年能準備400束茅草,兩年的800束茅草,恰好能鋪好單斜屋頂的四分之一。也就是說,屋頂表裡共分成八部分,全部鋪完需要16年(2年×8次)。16年後,又要開始換鋪最初鋪的部分,如此周而復始,以2年為週期持續進行換鋪作業。
相倉聚落當時有27戶人家,明治時期有47戶,規模與荻町聚落相差不大,理論上也有足夠的人力像荻町那樣一次完成屋頂鋪葺。然而在五箇山,人們根據自家茅草的量來限制換鋪範圍,基本上都是各自換鋪,即使需要幫忙,也只是請鄰居或附近村的親戚來協助。因此,像白川鄉那樣的「結帳」在五箇山很少見。
―― 從「結帳」看茅草的儲存方法
遠山家留存的《藏之屋根葺覺帳》(1792年),是白川村現存最古老的「結帳」,已有230年歷史。結帳中記載了前來幫忙鋪葺屋頂的人員姓名。根據不同時代和屋主,記錄內容各有不同,除了茅草、繩索等材料,還包括豆腐、酒、油炸食品等食物,可見當時存在材料和食材的借貸行為。
特別是茅草的「出借」這一點,從當時茅草的保存角度來看極為重要。茅草的收割期在10月下旬至11月降雪前進行。收割後的茅草會在茅場堆積成草垛,白川鄉稱為「茅垛」,五箇山稱為「茅堆」,露天存放至隔年初春鋪葺屋頂時使用。白川鄉一到春季,聚落中總有某戶人家要進行屋頂鋪葺,因此大家都積極出借茅草。之所以說積極,是因為「出借」本身即是一種茅草的儲蓄方式。若不出借而僅將茅垛露天存放,年復一年就會損壞。透過每年「出借」,待自家需要修葺屋頂時再收回,便能以新鮮的茅草鋪設屋頂。
五箇山的想法與白川鄉不同。五箇山人只使用自家茅場收穫的茅草,鋪葺範圍也以此為限,透過短期更換屋頂,縮短茅草的保存週期。如果收割的茅草能立即使用,就無需長期保存。因此,五箇山似乎不太積極出借茅草。
一次大範圍鋪葺的白川鄉,和分割鋪葺的五箇山,各自展現出合理利用收割茅草週期的智慧。
破風形狀的差異
比較白川鄉和五箇山的屋頂形狀,會發現白川鄉的屋頂稜角分明,而五箇山的屋頂則帶有圓潤的弧度。這是因為屋頂末端破風部分的鋪葺方式有所不同。
白川鄉是以破風最下端的茅草束(稱為「Sokugaya」)的根部為起點,將根部線45度角傾斜進行鋪設,然後從該處向上,按照下端茅草束的角度,依次斜向鋪上破風的其他茅草。因此,從山牆側面看,破風的茅草根部切面外露,破風的上面和角面呈現完全的直角,整體給人一種有稜角的印象。


相較之下,五箇山採用「圓筒狀鋪葺法」(稱為「Hahuyui」)。這種鋪法是先以麻莖為核心,將茅草捲成直徑約70cm的束狀(稱為「Hahujiri」,相當於白川鄉的Sokgaya)。這成為了鋪葺厚度的基準。在白川村,是以從屋脊到屋檐拉線作為鋪葺厚度的基準,但五箇山為了配合這種束狀茅草,並不拉線。如上所述,由於以圓筒狀方式鋪葺破風,使得破風整體呈現圓潤的形狀,讓屋頂營造出柔和的氛圍。


屋檐的角度
再仔細觀察屋頂的屋檐部分。白川鄉屋檐茅草的下表面與椽木(垂木)呈直角,而五箇山的屋檐茅草下表面,從垂木處有110度至115度的斜度。這是因為在五箇山,山牆側面大多有茅草搭建的庇檐,且與平側的茅草連續鋪繞。這種影響也表現在山牆側面沒有茅草庇檐的房屋上,同樣會有斜度。

